Middletown Courts

Unit 7726

7726 Main Street
Middletown, VA 22645

About Middletown Courts

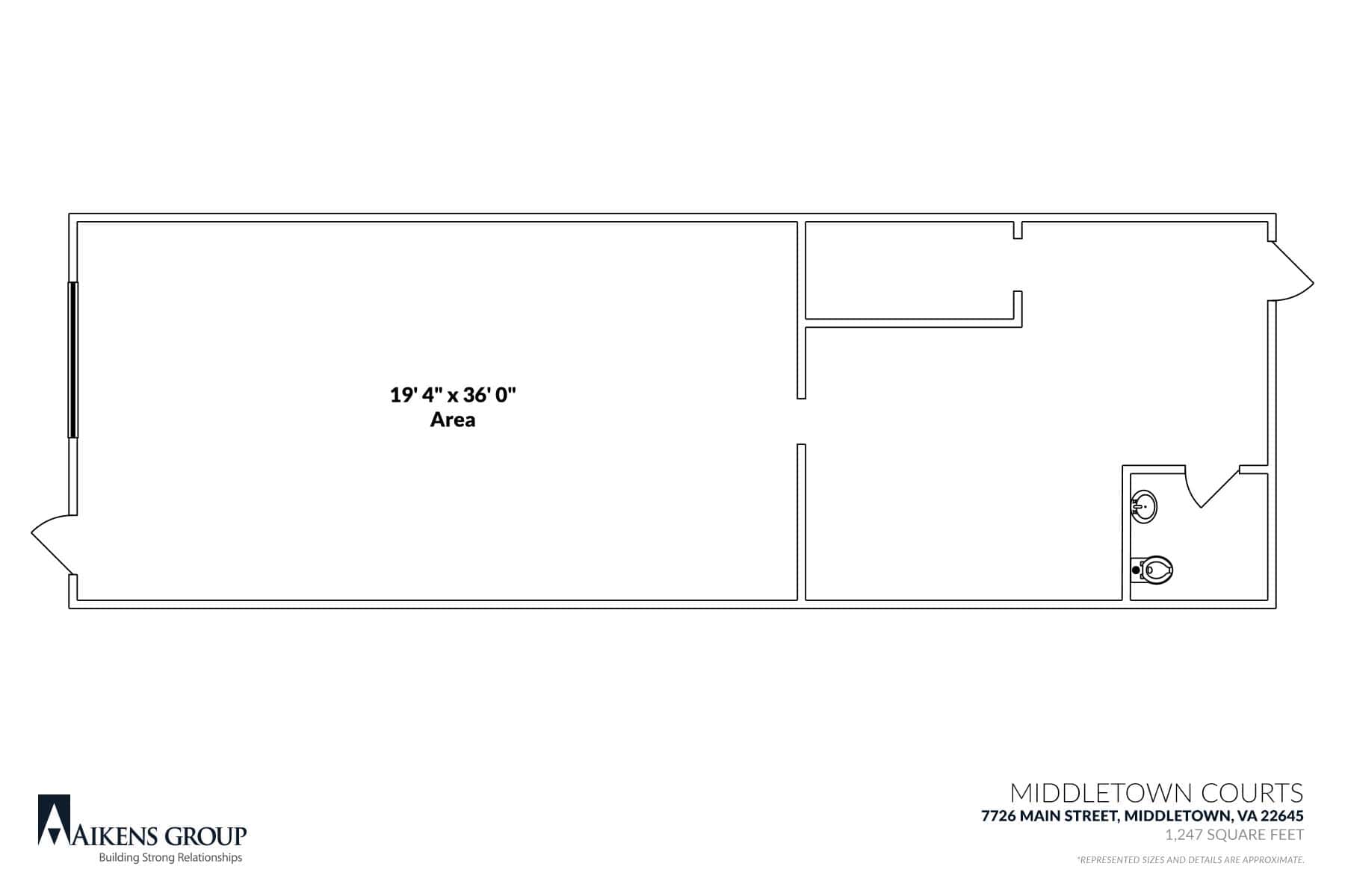
This 1,247 sq ft end unit location is fitted out as a bakery with a large open area in front, a process area in the rear, and a private bathroom with rear entrance.

1,247 SF

N/A

KEY FEATURES INCLUDE

  • 1st Floor
  • Ample Parking
  • Bathrooms
  • High Traffic Visibility
  • Rear Entrance
  • Storage
  • Zoned Commercial

FLOOR PLAN

LOCATION

Would your business be a perfect fit for this property?

Our commercial property manager is ready to answer any additional questions you may have. Connect with us by phone or through the form below. We look forward to being your partner in business!

Commercial Property Manager

Monday – Friday: 8am – 5pm
(540) 667-3752

Commercial Property Manager

Questions

Questions

Download Application

Download Application

Interested in this property? Let's talk.

Initial Focus Target