Madison Winds

Unit 3018-1A

3018 Shawnee Drive
Winchester, VA 22601

About Madison Winds

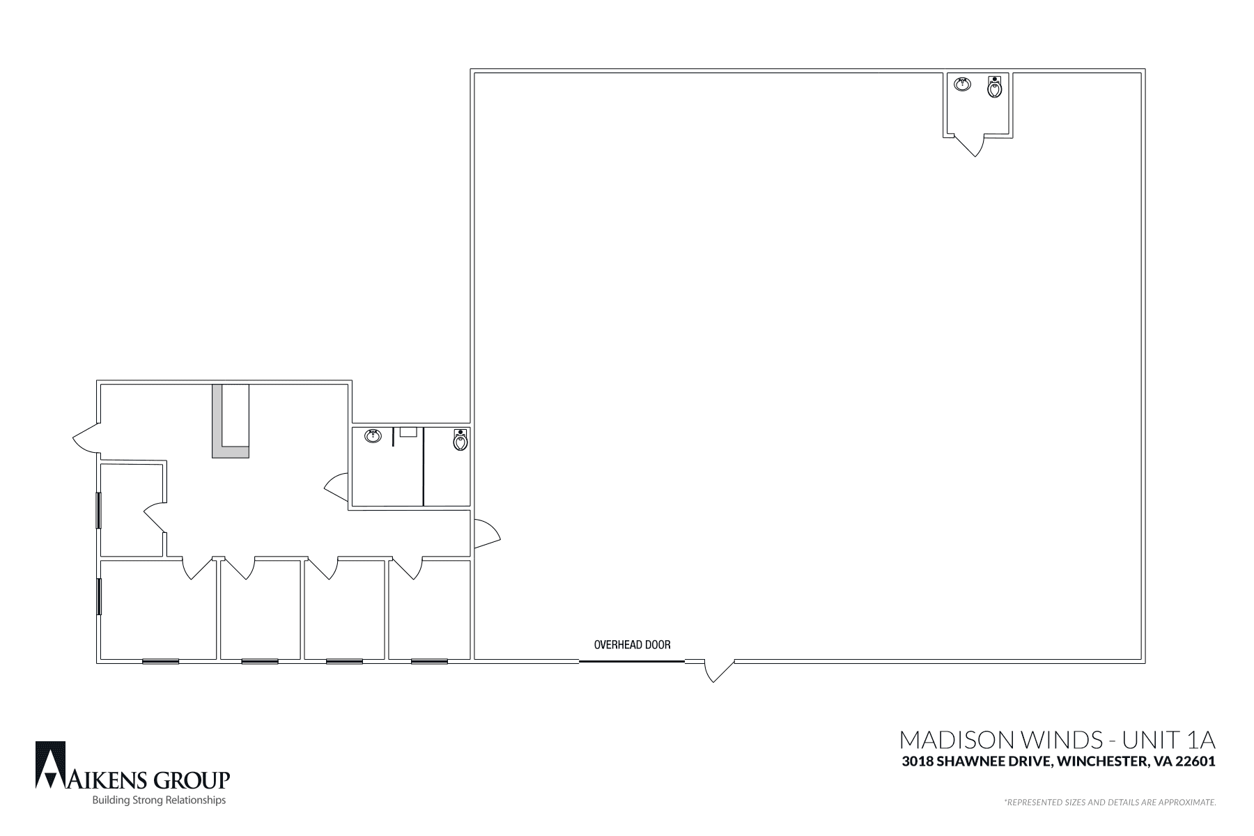
Unit 3018-1A at the Madison Winds commercial real estate complex is 5,074 sq ft of heated warehouse space and premium office space with showroom, reception area, offices, conference room, break room and restrooms.

5,074 SF

N/A

KEY FEATURES INCLUDE

  • 1st Floor
  • Dock High Loading
  • Overhead Doors
  • Utilities Included
  • Zoned Commercial

FLOOR PLAN

LOCATION

Would your business be a perfect fit for this property?

Our commercial property manager is ready to answer any additional questions you may have. Connect with us by phone or through the form below. We look forward to being your partner in business!

Commercial Property Manager

Monday – Friday: 8am – 5pm
(540) 667-3752

Commercial Property Manager

Questions

Questions

Download Application

Download Application

Interested in this property? Let's talk.

Initial Focus Target