Boulevard Plaza

Unit 143-1

115 Aikens Center
Martinsburg, WV 25404

About Boulevard Plaza

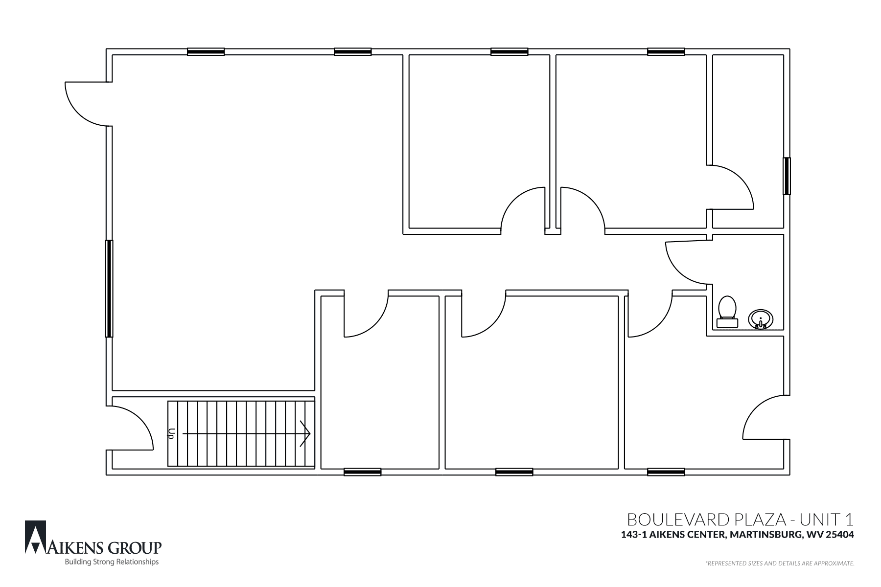
This ground floor property is approximately 1,225 sq ft of office space with reception area, four private offices and private bathroom. This is the perfect location for any type of professional services company.

1,225 SF

N/A

KEY FEATURES INCLUDE

  • 1st Floor
  • Bathrooms
  • Fiber Optic Broadband
  • High Traffic Visibility
  • Office Space
  • Reception Area
  • Zoned R-1

FLOOR PLAN

LOCATION

Would your business be a perfect fit for this property?

Our commercial property manager is ready to answer any additional questions you may have. Connect with us by phone or through the form below. We look forward to being your partner in business!

Commercial Property Manager

Monday – Friday: 8am – 5pm
(540) 667-3752

Commercial Property Manager

Questions

Questions

Download Application

Download Application

Interested in this property? Let's talk.

Initial Focus Target