Boulevard Plaza

Unit 143-2

143-2 Aikens Center
Martinsburg, WV 25404

About Boulevard Plaza

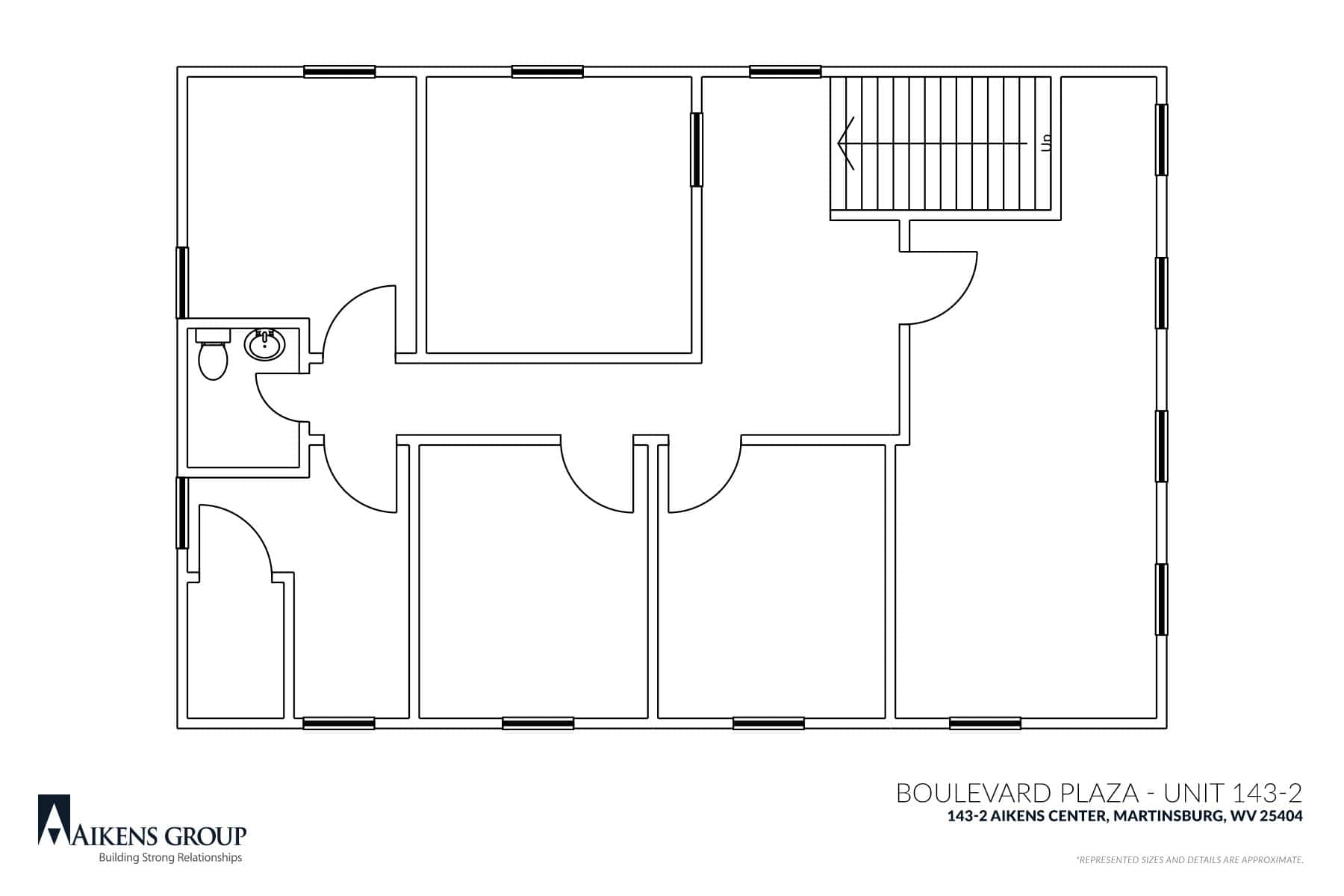
This second-floor commercial real estate property is approximately 1,312 sq ft of office space with a reception area, four private offices, a conference room, and a private bathroom. This is the perfect location for any type of professional services company.

1,312 SF

($12.00/SF)

$1,312/MO

KEY FEATURES INCLUDE

  • 2nd Floor
  • Bathrooms
  • Conference Room
  • Office Space
  • Reception Area

FLOORPLAN

LOCATION

Would your business be a perfect fit for this property?

Our commercial property manager is ready to answer any additional questions you may have. Connect with us by phone or through the form below. We look forward to being your partner in business!

Commercial Property Manager

Monday – Friday: 8am – 5pm
(540) 667-3752

Commercial Property Manager

Questions

Questions

Download Application

Download Application

Interested in this property? Let's talk.

Initial Focus Target